UNDER OFFER

1 Bankton Park West, Livingston
offers over £270,000

Public Rooms Bedrooms bathrooms EPC-D

Property Details

Situation

Livingston is ideally situated for commuters with excellent links to Edinburgh and Glasgow via A71 and M8/M9 motorway network as well as frequent buses and trains. It has good nursery, primary and secondary schools as well as West Lothian College.

The town centre provides an extensive range of shops at The Centre and Livingston Designer Outlet together with supermarkets, retail parks and restaurants.

For recreation, there are sport and leisure centres and Almond Valley Heritage centre with woodland walks and parks to enjoy.

Details

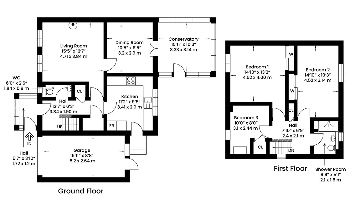
This detached family villa has been well maintained and is located in the sought after area of Murieston, within a few minutes drive of Livingston South station. It offers flexible accommodation over 2 floors and benefits from a conservatory to the rear and a garage to the side.

A porch at the front leads to the property with a door to the hall and access to the ground floor accommodation. A cupboard and a further understair cupboard provide useful storage.

There is a living room to the front with ample space for freestanding furniture and an electric fire and surround both of which are included in the sale. A door leads through to the dining room which offers flexible use with a set of French doors to the conservatory which enjoys views over the garden.

The modern kitchen has views to the rear garden and is fitted with a range of grey gloss wall and base units with complementary worksurfaces and metro tiling to splashback. The gas hob, oven, washer/dryer and fridge/freezer, are included in the sale but are not warranted. A door at the side leads to the garden.

The fully tiled cloaks/WC completes the ground floor accommodation and is fitted with a white 2-piece suite and has a window to the front.

A carpeted staircase leads to the upper floor which has a window to the side, a shelved cupboard and access to the attic.

Bedroom 1 has ample space for freestanding furniture, windows to the front and a built-in wardrobe.

The spacious second bedroom is to the rear with space for freestanding furniture and a built-in wardrobe.

Bedroom 3 is a single to the front with an overstair shelved cupboard.

To complete the accommodation, there is a shower room, part-tiled with wet wall panels, WC, wash hand basin and a double tray shower. Window to rear.

Features

Gas central heating
Double glazing

Property Video

Accommodation

Entrance porch
Hall
Living room, Dining room, Conservatory
Fitted kitchen
Cloaks/WC
3 bedrooms
Shower room

Gardens

There are gardens to the front and rear. The front garden is laid to lawn with hedging to the side. The garden to the rear is also laid to lawn and has a patio and a garden shed which is included in the sale.

Parking

There is a single garage to the side of the property with an electric roller door and a further door to the rear. The driveway provides off-street parking.

Extras

All fitted carpets, floor coverings, blinds, integrated appliances and the garden shed are included in the sale. Some furniture may be available.