45 Oatlands Park, Linlithgow
offers over £470,000

Public Rooms Bedrooms bathrooms EPC-D

Property Details

Situation

The Royal Burgh of Linlithgow lies approximately 15 miles west of Edinburgh and 36 miles east of Glasgow. It is a thriving town which offers excellent primary and secondary schooling, a good choice of shops, supermarkets, a retail park, restaurants and numerous recreational facilities.

The town enjoys a fast, frequent rail service to Edinburgh, Glasgow and Stirling and easy access to the M8 and M9 motorways and Edinburgh Airport.

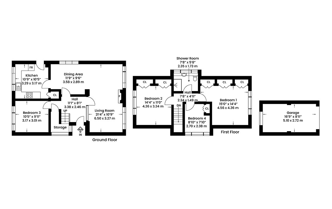
Details

Enjoying a peaceful, cul-de-sac setting in this sought after area to the south of the town, 45 Oatlands Park sits on a generous plot with wrap around gardens.

The property has a light and airy ambience throughout and offers spacious accommodation over both floors. The property is accessed via a uPVC door with glazed panel leading through to the hall which gives access to the ground floor accommodation and has a large, understair cupboard.

The well-proportioned living room / dining room is to the front of the property with windows overlooking the garden and a further window to the side. The wall-mounted fire is included in the sale but not warranted. A door leads to the kitchen which is fitted with a range of wall and base units with 1.5 stainless steel sink and drainer and tiled to splashback. In addition, there is a walk-in shelved pantry. The hob, oven, grill, washing machine, tumble dryer and fridge/freezer are included in the sale but not warranted. A door to the side leads to the garden.

Bedroom 3 offers flexibility of use and is situated to the rear with views over the garden.

Stairs lead to the upper floor with a glazed panel at the half landing. There are 3 further bedrooms on this floor and a shower room.

The main bedroom is to the front with a part-coombed ceiling and twin windows offering views to the garden. There are three built-in wardrobes offering excellent storage and a range of fitted furniture.

Bedroom 2 is to the rear with a part-coombed ceiling and space for freestanding furniture. In addition, there are two built-in wardrobes with hanging rail and side shelving, one of which also houses the hot water tank.

Bedroom 4 is to the front with a built-in cabin bed, a range of built-in shelving and "hidden" eaves storage. Hatch to roof space.

The shower room completes the accommodation and is fitted with a recessed wash hand basin in vanity unit, WC and separate double tray shower with glazed screen. Windows to side.

Features

Gas central heating
Double glazing

Property Video

Accommodation

Hall
Living room / dining room
Fitted kitchen
4 bedrooms
Shower room

Gardens

The front garden has a central path with twin lawns, rose beds and rockery planting with a further area of lawn and trees.

In addition, there is a rockery garden to the rear with an area of lawn and an array of flowers including hydrangeas and winter roses together with seasonal planting. There is a further area of lawn to the side.

Garage

There is a single garage to the side with a window to the rear, together with a long driveway which provides off-street parking.

Extras

All fitted carpets, floor coverings, curtains, blinds, wall-mounted fire and the white goods as specified are included in the sale.

Schedule