Plot 5 Myrehead Steading, Whitecross
offers over £127,000






PLOT Details
Location
Enjoying a semi-rural location, Myrehead Steading is situated a few minutes drive from Linlithgow and Polmont with easy access to the M9 motorway to Edinburgh and the Central Belt and and the fast, frequent rail service to Edinburgh, Glasgow and Stirling.
Linlithgow is a thriving town which offers a good choice of shops, supermarkets, a retail park, restaurants and numerous recreational facilities.
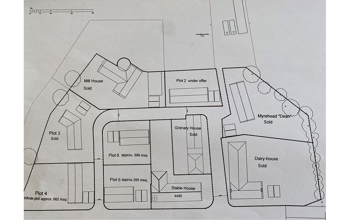
Plot 5
This plot extends to 395 square metres and comes with planning permission for a 3 bed detached house.
The plot has recently been cleared and has services to the boundary.
Planning
The plot has planning permission under planning reference P/17/0573/MSC - Falkirk Council.
Plot 5
Other
The above particulars are believed to be correct but are not warranted and will not form part of any contract of sale.
Schedule